Siirry pääsisältöön

Kalenteri

Tehtaanmäen kansakoulu suunniteltiin 1938–39 ja se otettiin käyttöön 1940. Koulu liittyy Tehtaanmäen alueeseen Inkeroisissa, johon Aalto suunnitteli sekä muutostöitä että uudisrakennuksia olemassa olleelle tehdasalueelle. Aallon toimiston rooli korostui asuinalueilla ja Tehtaanmäen koulun suunnittelussa.

Suunniteltu

1938-39

Sijainti

Kouvola, Inkeroinen, Suomi

— 1

Tehtaanmäen koulun julkisivu. Kuva: Maija Holma © Alvar Aalto -säätiö.

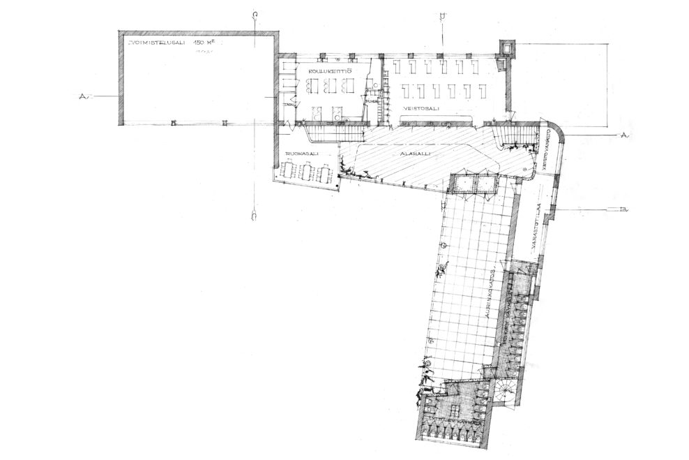
— 2

Pohjapiirustus. Piirustus: © Alvar Aalto -säätiö.

— 3

Aulan isot ikkunat tuovat luonnonvaloa sisätiloihin. Kuva: Maija Holma © Alvar Aalto -säätiö.

— 4

Aulan parveke. Kuva: Maija Holma © Alvar Aalto -säätiö.

— 5

Julkisivu pihalle päin. Kuva: Maija Holma © Alvar Aalto -säätiö.

— 6

Toisen kerroksen pohjapiirros. Piirustus: © Alvar Aalto -säätiö.

— 7

Luokkahuone. Kuva: Maija Holma © Alvar Aalto -säätiö.

Video: Aalto’s Tehtaanmäki School – a Cultural Heritage Building in Transition

Tehtaanmäen koulu (1938-39), Inkeroinen, Kouvola. Kuva Maija Holma, Alvar Aalto -säätiö.

Lisätietoja

Tehtaanmäen kansakoulu Kouvolan kaupungin verkkosivuilla.

Kuva: Maija Holma © Alvar Aalto -säätiö.

Evästeiden käyttö

Tämä sivusto käyttää evästeitä. Evästetieto tallennetaan selaimeen ja tietoja käytetään käyttäjän tunnistamiseen ja yksilöintiin. Voit tällä sivulla muuttaa tapaa, jolla sallit tai kiellät evästeiden käytön.

Välttämättömät evästeet

Välttämättömät evästeet ovat tarpeellisia, jotta voit käyttää tiettyjä sivustolla olevia toimintoja.

Jos otat välttämättömät evästeet pois käytöstä, tietyt sivustolla olevat toiminnot eivät toimi. Lisäksi emme voi tallentaa kieltoasi evästeiden käytöstä ja joudumme kysymään asiaa myöhemmin uudelleen.

Kolmannen osapuolen evästeet

Sivusto käyttää Google Analytics -palvelua, jota käytämme kävijämäärien ja sivustojen käyttötapojen analysoinnissa. Google Analytics yhdistää näitä tietoja omiin käyttäjätietoihinsa oman tietosuojapolitiikkansa mukaisesti.

Hyväksymällä kolmannen osapuolen evästeet mahdollistat näiden tietojen käytön.